Мы используем куки-файлы. Соглашение об использовании
  • ВТБ
    ПСБ
    Совкомбанк
    Альфа-Банк
    Уралсиб
    Банк ДОМ.РФ
    Т-Банк
    МКБ
    Абсолют Банк
    Реальные ипотечные ставки от 9 банков - 5,75% на новостройки, 16,9% на вторичку
    Перейти в сервис
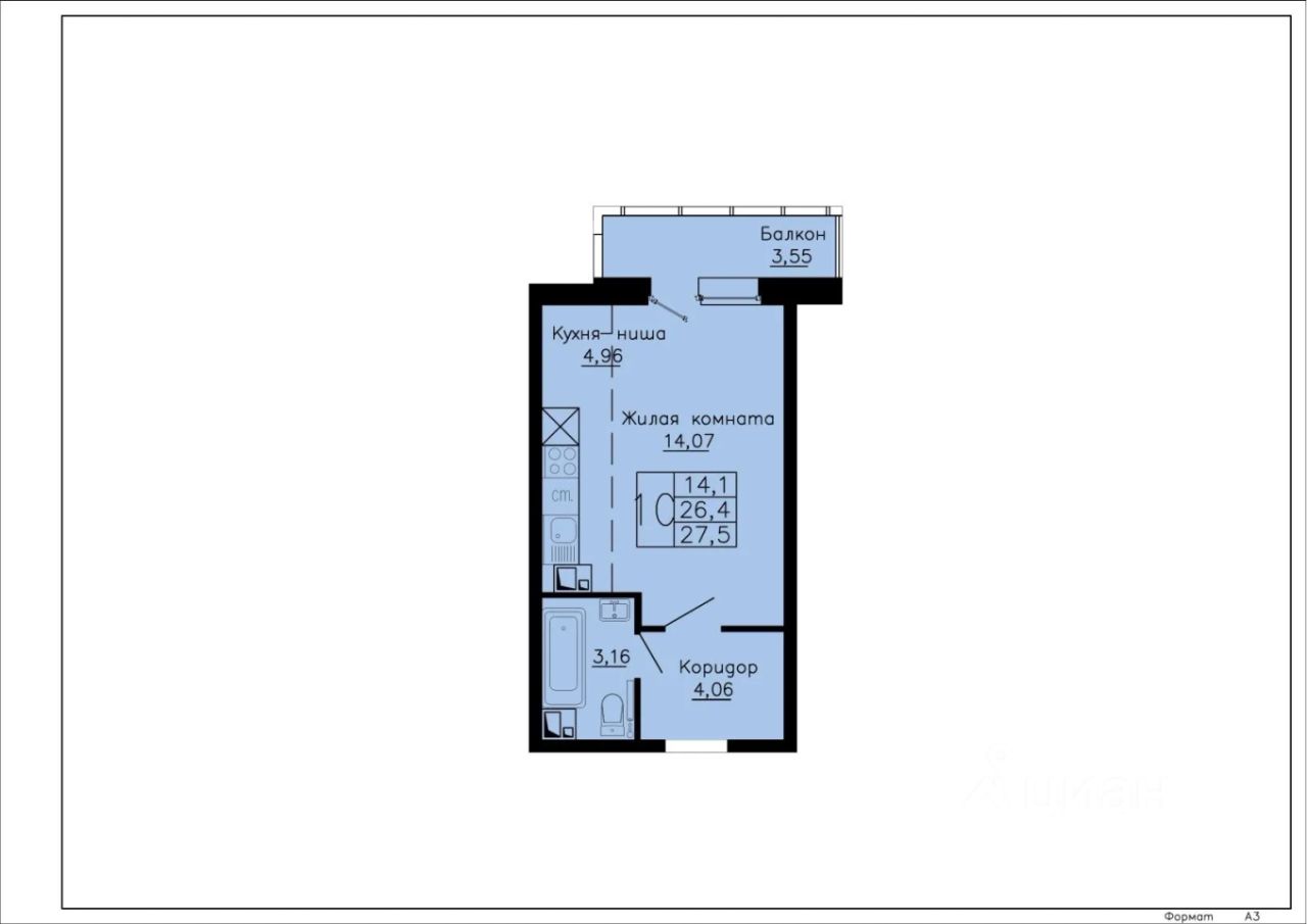
Общая площадь27,5 м²
Этаж5 из 16
Год сдачи2029
ДомНе сдан
Продаётся студия в строящемся доме (Дом 1), срок сдачи: IV-кв. 2029, общей площадью 27.5 кв.м., на 5 этаже. Новый жилой комплекс "Лотос" от застройщика "СЗ Строй-Индустрия" расположен по адресу: г. Архангельск, улица Выучейского.

О квартире

Тип жилья

Новостройка

Общая площадь

27,5 м²

Высота потолков

2,72 м

О доме

Количество лифтов

2 пассажирских, 2 грузовых

Тип дома

Монолитно-кирпичный

Похоже на то, что вы ищете?
Ипотечный калькулятор
  • Базовая
  • Семейная
  • ИТ-ипотека
  • 20%
  • 30%
  • 40%
  • 50%
лет
  • 10 лет
  • 20 лет
  • 30 лет
Загружаем предложения от застройщика и банков
Корпус проверен наш.дом.рф
Обновлено 30 марта 2026
  • Нет в реестре проблемных объектов
  • Застройщик не банкрот
  • Есть эскроу счёт
  • Актуальные фото стройки

Ещё квартиры в жилом комплексе

418 квартир в продаже · Сдача в 4 кв. 2029
Консультант
Циан
  • 5 лет 10 месяцев на Циане
  • 38023 объявления
  • 4 250 349 ₽
    Цена за метр
    154 558 ₽/м²
    Условия сделки
    долевое участие (214-ФЗ)
    Консультант
    Циан