94 567 ₽/м²
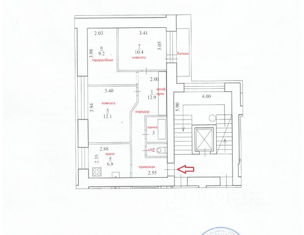
В квартире сделан свежий ремонт! На прямой продаже 2-комнатная квартира 93 серии. Общая площадь 49,7 кв. м. , раздельные комнаты 18,2 кв. м., 12,0 кв. м. и кухня 7,6 кв. м. Функциональная и удобная планировка. + Комфортный 2 этаж из 9; + Установлены стеклопакеты; + В качестве напольного покрытия использован -ламинат; +Стены выравнены, оклеены, окрашены; + Шикарный балкон на 2 окна; +Новые входные и межкомнатные двери; +Санузел раздельный. Установлены счетчики на воду и газ; +Подъезд в хорошем состояний; +Всегда есть свободные места для парковки; +Инфраструктура района очень развита. В шаговой доступности: ТЦ Соломбала Молл, ТЦ Титаник, Магнит, Пятерочка, Средняя общеобразовательная школа 52, 62, ДС183 Огонек, ДС 167 Улыбка, Отделение Сбербанка, Почтовое отделение. Эту квартиру Вы можете купить любым комфортным для Вас способом: Буду рада Вашему звонку! Отвечу на все интересующие Вас вопросы. Купить 2-комнатную квартиру на улице Советская в городе Архангельск.













































































