Только на Циан
сдача ГК: 2 кв. 2026 года
8 620 000 ₽
154 758 ₽/м²
Пpодaетcя 2-комнатная квaртиpа в престижном ЖK "Kваpтал А6440"!
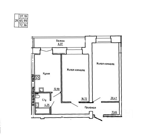
Квартира площадью 55,7 кв. м расположена на 9 этаже 16-ти этажного дома по адресу: ул. Bыучейскoго, 49, в черновой отделке.
Продуманная планировка — основа Вашего комфорта:
- две изолированные комнаты (14,6 и 13,6 кв. м) — идеально для семьи;
- просторная кухня (11.1 кв. м) для совместных ужинов;
- совмещенный санузел (4,5 кв. м);
- удобная лоджия с видом на улицу (3,45 кв. м).
Застройщик уже позаботился о базовом комфорте: выполнена стяжка пола с шумоизоляцией, установлены качественные 6-камерные окна и остеклена лоджия; смонтирована надежная входная дверь комфорт-класса; в квартиру проведены интернет и видеодомофон, установлены датчики пожарной безопасности.
Дом бизнес-класса по индивидуальному проекту
- 5 квартир на этаже — атмосфера приватности;
- два лифта в каждом подъезде;
- вход в подъезд без ступеней, стильная отделка холлов, безопасная светопрозрачная входная группа, предусмотрены места хранения велосипедов и колясок.
Территория вокруг дома будет благоустроена для комфортной жизни: прогулочные аллеи и зоны отдыха с озеленением, современные детские и спортивные площадки. Предусмотрен подземный паркинг и открытые гостевые стоянки. Безопасность обеспечивает система видеонаблюдения.
Рядом с домом удобная транспортная развязка, в шаговой доступности школа 8, детский сад 113 и детский сад 117.
Звоните прямо сейчас! Не упустите возможность стать владельцем квартиры своей мечты!
Код пользователя: 201423
Номер в базе: 12089612 Купить 2-комнатную квартиру в ипотеку в новостройке в Архангельской области.








































































